xk星空体育官方网站|空调机组|风机|风阀|风口

xk星空体育官方网站|空调机组|圳泽空调设备有限公司

20年中央空调末端设备专业制造商
做诚信企业、以质量、服务赢得客户

全国咨询热线17588066499

星空体育安卓版下载官网

星空体育安卓版下载官网

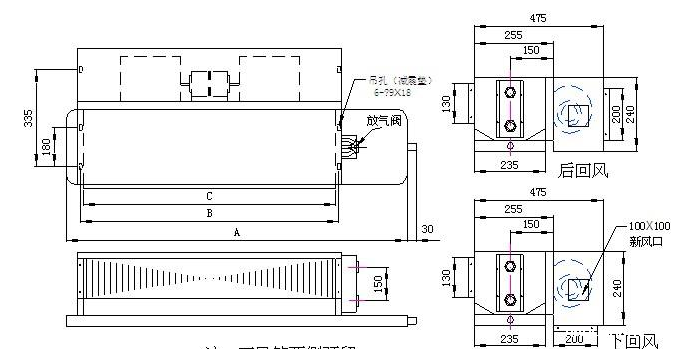
xk星空体育官方网站尺寸

发布时间:2020-01-04来源:xk星空体育官方网站|空调机组|圳泽空调设备有限公司

很多人都不知道xk星空体育官方网站机组、xk星空体育官方网站机组的空调设备是一种,它可以通过冷却空气室内户外,为了满足人们的需要一个舒适的温度,xk星空体育官方网站机组的类型,常见的有磁带,水平,墙挂,垂直几个不同xk星空体育官方网站也有一定的差异,今天小编为你简单介绍xk星空体育官方网站和大小的分类要求,让每个xk星空体育官方网站单位有进一步的认识和理解,xk星空体育官方网站单元新朋友可以小编一起来做一个简单的研究。
xk星空体育官方网站尺寸。xk星空体育官方网站的分类


xk星空体育官方网站机组又称xk星空体育官方网站,是由小风机、电机和盘管(空气换热器)组成的空调系统的末端单元之一。冷却,除湿,或加热线圈外的空气,因为它流经冷却或热的水在线圈内调整室内空气参数。它是一种常用的冷热终端设备。从xk星空体育官方网站的结构来看,xk星空体育官方网站可分为:水平和垂直(包括列类型和较低的类型),盒,墙挂,和安装形式可分为两种,从水的位置也可以分为出口面对的单位,对回水管左侧),正确的类型(出口面对的,右边的回水管),等等,风扇板光当制冷空气对流传热,并不能使室内舒适度,适合于在较短时间内亲身申请,如办公楼或普通住宅,如增加风机,会增加成本和运行成本,设备管理和维护难度大。
xk星空体育官方网站尺寸。xk星空体育官方网站尺寸要求


不同居室的xk星空体育官方网站单位有不同的要求,如果建造更大,并要求制冷效果,建议选择一个规模更大的卧式xk星空体育官方网站机组,由于卧式xk星空体育官方网站面积较大,可以占用更大的空间,但对于建筑物的高度相对较低,有34个l规格,51l、68l、85l、102l、136l、170l、204l、238l,不同模型对不同尺寸要求,所以价格或多或少会有一些差异。
现在人们的生活质量有很高的要求,居住环境的好坏也是很多人非常关注,确保室内凉爽的夏季,冬季室内温暖的词,很多制冷设备是不可或缺的,xk星空体育官方网站是正确的选择,xk星空体育官方网站的应用范围非常广泛,无论是在家里或办公室,可以使用在选择xk星空体育官方网站类型和大小,我们可以选择根据实际需求,通常一个中等大小的xk星空体育官方网站单位的利用率是比较高的,需要朋友不妨在学习小的方面弥补一下,教你选择最适合自己的xk星空体育官方网站的知识。

分享到:0 用手机看
xk星空体育官方网站尺寸

拍下二维码,信息随身看

试试用手机扫一扫,
在你手机上继续观看此页面。

Baidu
map